• Home
  • The American Marquetarian Monthly Special
  • New Update Info. 12/11/2025
What is Marquetry +
When and where do we meet
What are the benefits of membership
Pictures / Meeting Videos
Patterns
Resources
Garden State Marquetry Book Inventory
DVD Inventory
Contact Us
Newsletters Old & New
Woodworking Plans and Information
New Membership Info. signup sheet
Admin Info.
Mark Yaros
  • Home
  • The American Marquetarian Monthly Special
  • New Update Info. 12/11/2025
What is Marquetry +
When and where do we meet
What are the benefits of membership
Pictures / Meeting Videos
Patterns
Resources
Garden State Marquetry Book Inventory
DVD Inventory
Contact Us
Newsletters Old & New
Woodworking Plans and Information
New Membership Info. signup sheet
Admin Info.

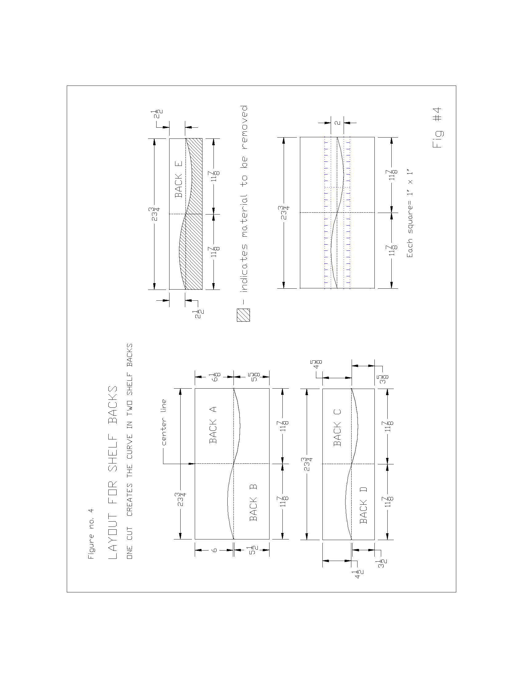
Wave Shelf

↑Back to Top
Powered by Adobe Portfolio